Hrubý návrh koupelny
Dneska jsme si (popáté v tomto pracovním týdnu :-/) opět přivstali, abychom se v Siko koupelnách sešli s pánem zodpovědným za klientské změny v koupelně a na WC. Vyšel nám z toho hrubý nákres určený v této fázi pro změny v zařizovacích předmětech, instalacích odpadů, elektroinstalacích a přívodech vody.
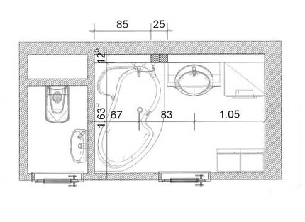
WC jsme se rozhodli udělat závěsné – místnost se o zabudovanou nádržku zkrátí jen trošičku, protože tato půjde dát částečně do světlíku. Na WC přibude ještě podlouhlé umývátko.
V koupelně jsme použili vanu Rosa II (od Ravaku, líbí se nám už dlouho) s předním panelem. Nebude tedy vestavěná, ale bude z celé přední části obcvaknutá akrylátovým panelem. Vypadá to celkem vkusně. Nejdřív to vypadalo, že do místnosti o délce 176 cm půjde dát 170ka vana, ale nakonec (kvůli instalacím, které musejí ještě před projektovanou stěnu!) se tam vejde jenom 160ka. Neva – i 150ka Rosa II má příčnou délku 180 cm. Takže se vejdeme (Ivan) a já se utopím.
Od okraje vany navíc povede sloupek (pro sprchovací zástěnu) na šířku dlaždice 25 cm. Rozliší se to různě barevnými dlaždicemi.
Plánované umyvadlo Jika s odkládacími plochami (85 cm) se nevejde (hmm) – změnili jsme ho na 80centimetrové i s jinou skříňkou. Vedle už se vejde jenom pračka.
Hezké je, že ta předezdívka s instalacemi bude do výšky asi 1 metru po celé zadní stěně koupelny, takže tam vznikne odkládací plocha. Nad vanou, pračkou i umyvadlem se vždycky hodí.
Nyní míří hrubý návrh k projektantům. Když ho odkývnou (a my uzavřeme dodatek o klientských změnách), půjdeme si nechat definitivně navrhnout koupelničku.

Zatim bez komentare
Budte prvni!
Chcete neco dodat?